Excalibur 5.5 pièces

Appartements 5 ½ pièces à vendre

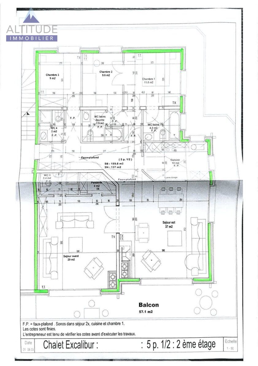
5.5 pièces

3

sud-est

160 m2

2002

2ème étage

Superbe appartement de 5.5 pièces avec vue exceptionnelle sur les Alpes, à proximité immédiate du centre.

CHF 2 950 000

Détails

Superbe appartement de 5.5 pièces avec vue exceptionnelle sur les Alpes, à proximité immédiate du centre.

 

Situé dans une résidence de standing au charme alpin, cet appartement bénéficie d’un emplacement privilégié à quelques minutes à pied du centre. Il offre une vue spectaculaire sur les Alpes, qui ne manquera pas de vous séduire.

 

Traversant et baigné de lumière, ce bien dispose de trois chambres avec salles de bains attenantes. Le second séjour permettrait facilement l’aménagement d’une quatrième chambre selon vos besoins.

 

Ce bien est proposé avec une cave, un local à skis ainsi qu’une place de parc intérieure (vendue en sus du prix de vente).

 

Une opportunité rare sur le marché à visiter sans attendre !

 

Vendable en résidence secondaire et à une clientèle non domiciliée en Suisse.

 

Surface de l’appartement environ 160 m2 et surface du balcon environ 57 m2. Surface de vente environ 188 m2.

 

Pour plus d’informations ou organiser une visite, contactez-nous dès maintenant !

 

Renseignements